BIM Modeling - MEP

Project Overview
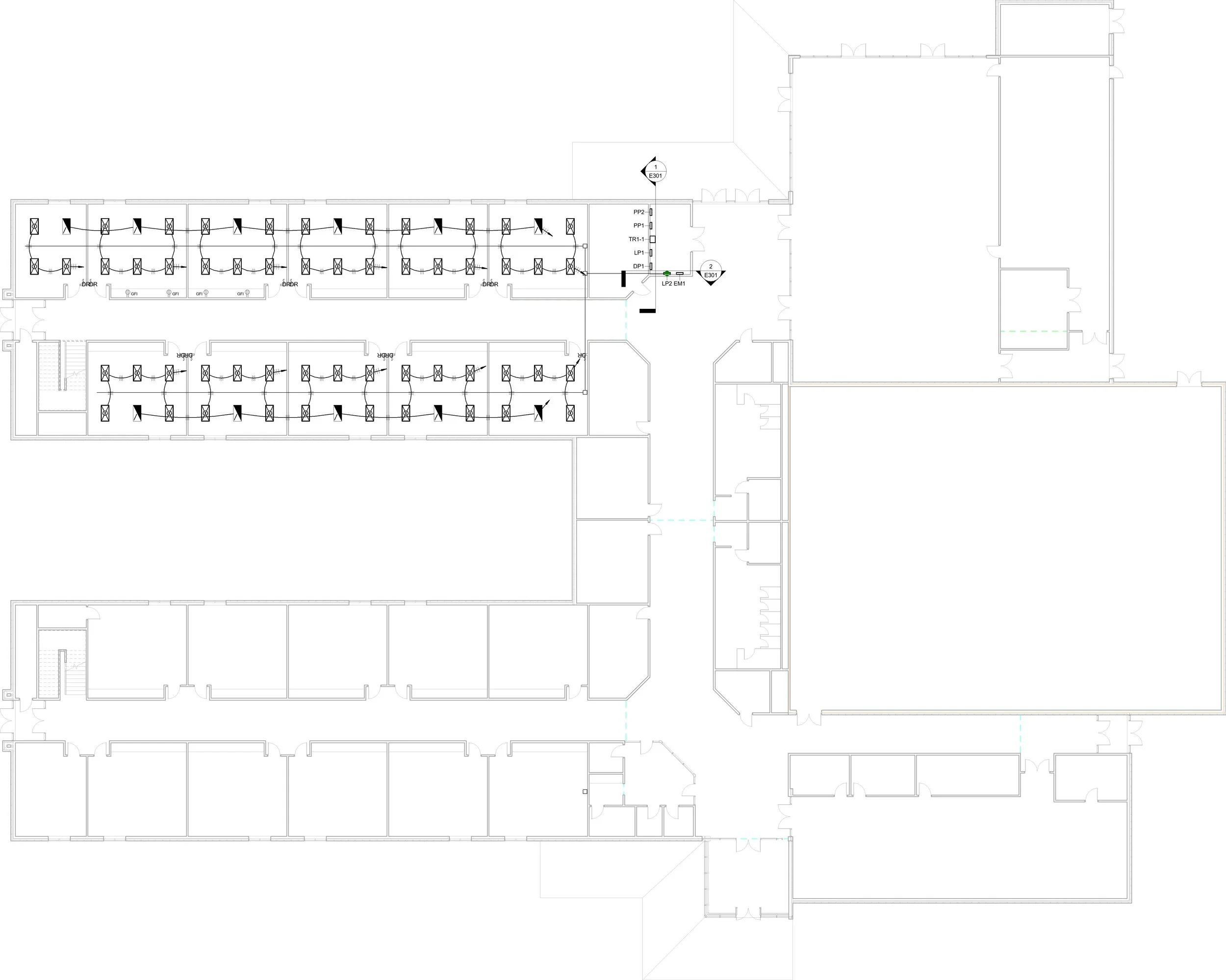
Development of mechanical, electrical, and plumbing systems for a two-storey elementary school building using a linked architectural BIM model as a coordination reference.

Role
Modeled mechanical, electrical, and plumbing systems in Revit based on architectural layouts, coordinating system routing with building spaces and fixture locations.

Tools
Revit

Key Work

  • Modeled HVAC duct layout for primary mechanical distribution

  • Developed lighting and basic electrical power layouts

  • Modeled plumbing systems connecting fixtures across floors

  • Coordinated MEP routing with the linked architectural model

Previous
Previous

BIM Modeling - Architectural

Next
Next

BIM Modeling - Structural