Interior Modeling: Patient Room

Project Overview
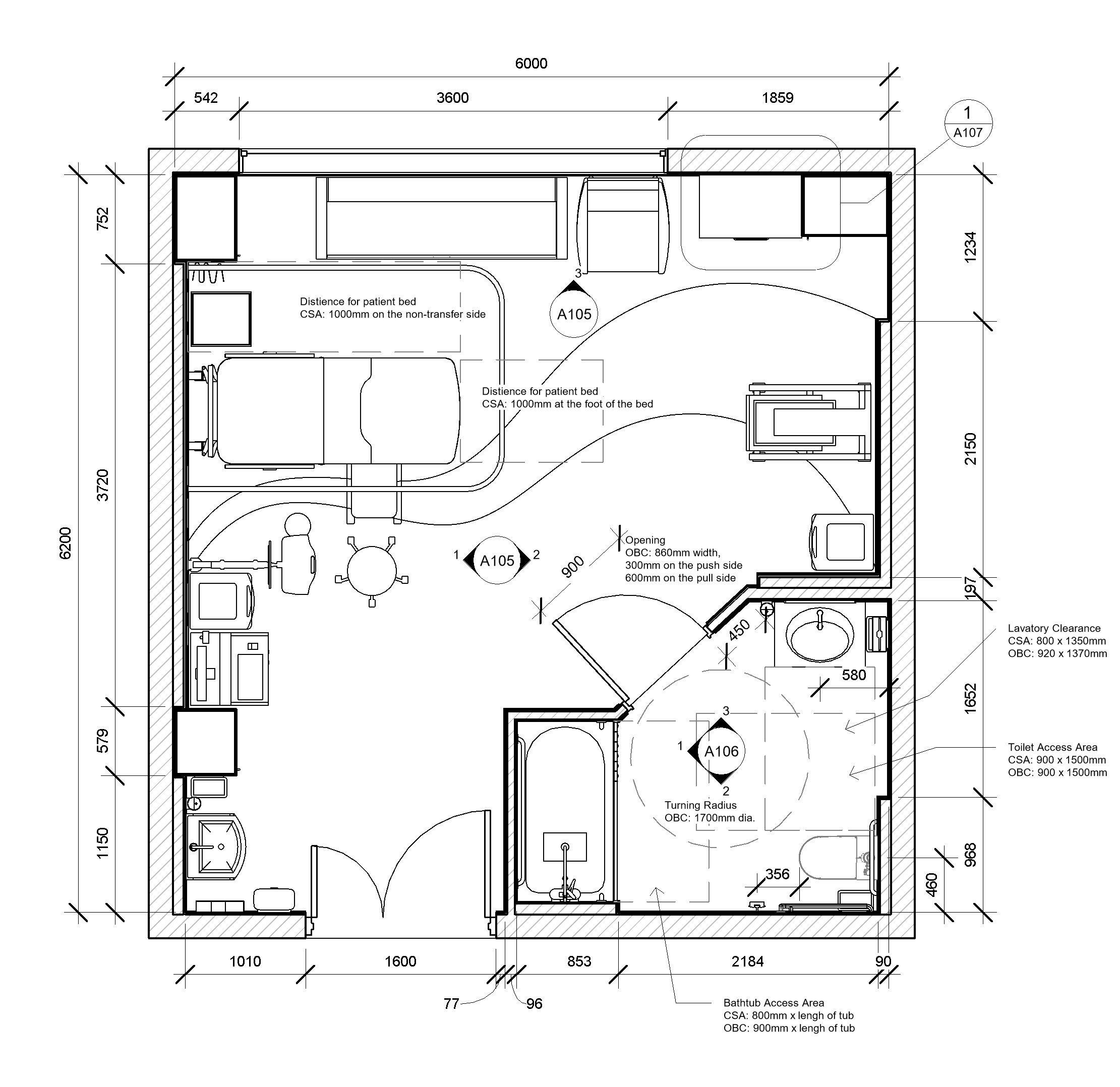
Development of a typical Labor, Delivery, and Recovery (LDR) patient room layout within a healthcare setting, focusing on interior space planning and BIM-based documentation.

Role
Modeled interior layout, millwork elements, and furniture placement in Revit based on healthcare room requirements, producing coordinated drawings and documentation.

Tools
Revit · Enscape

Key Work

  • Developed interior space layout for a typical LDR patient room

  • Modeled millwork, furniture, and equipment placement

  • Produced construction documentation including floor plans, RCP, and interior elevations

  • Generated finish quantity takeoffs and furniture schedules from the Revit model

Previous
Previous

Revit Automation - Dynamo